23년 초 회사를 퇴사하고, 본격적으로 인테리어를 시작할 때 즈음.
지인분의 소개로 한옥 리모델링 프로젝트를 의뢰받게 되었다.
남한산성에 위치하고 있는 많은 한옥주택들 중 하나이며 지하 1층 지상 1층으로 구성되어 있다.
지상층엔 건물주 부부와, 자녀 2명 총 4인 가족으로 구성되어 있었고. 지하층에는 임대를 주기 위해서 리모델링 계획을 세우고 계셨다.

우선 한옥은 기본적으로 겨울에 굉장히 춥다. 그이유는 창호들의 기밀성이 상당히 떨어지기 때문이다. 그래서 이중덧창 시고을 하거나 또는 한옥 간살창호가 따로 나오고 있다. (굉장히 비싸다)
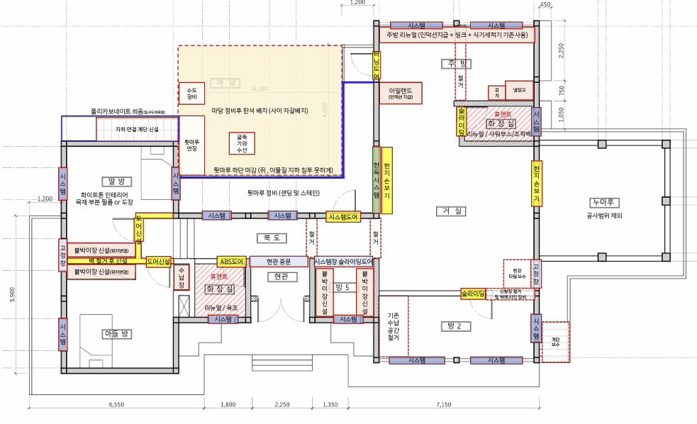
이 집의 가장 큰 문제는 춥다는 점. 그래서 창호를 교체하고. 두 번째 거실과 방 등이 크게 구획이 되거나 형태가 이상하여 충분히 공간 활용을 하기 어렵다는 것. 그 외 자잘하게 상당히 수리를 하거나 수선을 하는 등 수선 범위가 굉장히 많다는 것.

크고 작은 공사들이 다양하게 혼재되어 세밀하게 공사 내용을 숙지하고 세심하게 시공해야 하는 프로젝트였다.
약 9~10회정도의 제안서 작업을 거쳐 최종 공사범위 및 공사비를 확정하고 공사를 진행하게 되었다.
공사를 진행하면서 철거를 하고 나서 추가되는 공사들도 상당히 많이 발생하였다. (소소한 작은 수리 등)

거실은 좌측에 보이는 창호를 신설하고 (한옥시스템창호) + 욕실을 슬라이딩도어 설치 및 내부 전면 교체 하였다.

주방은 아일랜드를 설치하고, 싱크 및 전체 주방 수납장을 교체하였다.

주방 나무 기둥들 사이 삭아버린 황토벽은 기본 손질 이후 템바보드를 취부 하여, 연속적인 이미지를 부여하였다.

기존 에는 막혀있던 복도를 뚫고 연결하였으며, 연결되는 복도에 신규로 드레스룸을 배치하였다.
현관 도어는 손질하여 다듬고, 현대식 신발장과 거울을 취부 하였다.





대부분의 가구들은 웜화이트 톤으로 구성하였고, 한옥집이 풍기는 분위기를 최대한 흐리지 않게 하기 위해 노력했다.
화장실은 반전을 주기 위해 고민했고, 한옥스타일을 벗어난 호텔 분위기를 연출할 수 있는 어두운 톤의 타일과 액세서리류들을 선정하였다.




이어서 자녀방 및 신설된 안방 이미지. 각 방들은 차분하게 구성될 수 있게 포인트 벽지 구성하였고
자녀방들 은 붙박이장을 배치하였다.



내부공간뿐만 아니라 외부공간도 상당히 많은 범위 수리를 하였다.
툇마루 하단부를 통해 많은 벌레와 쥐등이 들어오는 상황이라, 툇마루 하부를 폴리카보네이트를 이용하여 막아주되 빛은 통할 수 있도록 하였다.

툇마루 하단을 막으려는 부분의 디테일이 상당히 아쉽게 생각한다. 좀 더 이쁜 디테일들을 많이 고민했어야 하는데 보수라고 생각하고 깊게 고민하지 못하여 후면부 프레임이 상당히 노출되어 툇마루의 경관을 흐리는 부분이 상당히 아쉽다.

그 외 뒷마당의 무수한 잡초를 제거하고, 현무암 판석을 깔고 백자갈을 배치하여 한옥의 이미지와 부합되는 마당 분위기를 조성하였다.

지상층은 이렇게 정리하였고. 지하층은 임대 공간이라 크게 많은 비용을 들이지 않고 깔끔한 수준으로 유지하기 위한 보수들을 진행하였다.


한옥을 수리한다는 건 생각보다 많은 고민과 어려움들이 있다는 것을 알게 된 프로젝트다. 한옥이 자체적으로 가지고 있는 분위기가 너무 좋아서 최대한 그것을 지키면서 혹은 따라가면서 삶을 살아가시는데 불편함이 없게 하고자 노력했던 프로젝트라는 기억이 남는다.
P.S 작성을 하다 보니 준공사진 먼저 올리게 되었는데. 다음 편에서는 프로젝트 시작에 대한 이야기와 초반 방문했을 때의 한옥이 어떠한 상태 였는지 소개하고자 한다.
문의 : (주)엠큐브스페이스 , (주)엠큐브건축사사무소
02-875-1077 / jk21507@mcubespace.com
http://www.mcubespace.com
McubeSpaceLab
건축, 공간, 인테리어 디자인 스튜디오
mcubespace.com
'프로젝트 사례 (포트폴리오) > 주거·호텔·레지던스' 카테고리의 다른 글
| [의료관광호텔 인테리어] 용도변경 허가로 완성된 편안한 쉼터 (1) | 2025.04.22 |
|---|---|
| [반포동 아파트 리모델링] 고요한 럭셔리를 담은 30평형 프리미엄 공간 (1) | 2025.04.21 |
| 화이트톤으로 구성된 32평형 아파트 인테리어 "강동 롯데캐슬 APT" (7) | 2024.11.16 |
| 화이트 + 우드톤으로 구성된 32평형 아파트 인테리어 "마포성사풍림APT" (10) | 2024.11.13 |